1+KK 41,51m2 Y

1+KK 41,51m<sup>2</sup> Y
1 PLUS KK
Typ 1+KK 41,51m2 Y
Podlaží 2. NP, 3. NP, 4. NP
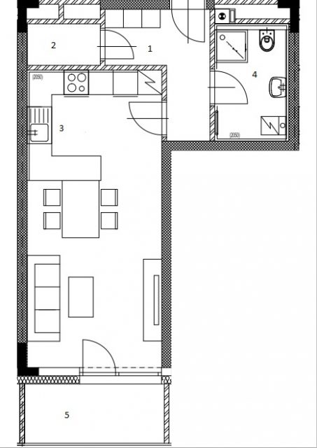
01 Chodba 5,48 m2
02 Komora 1,81 m2
03 Obývací pokoj + kuchyňský kout 23,93 m2
04 Koupelna s WC 5,17 m2
  Podlahová plocha 36,39 m2
05 Lodžie 5,12 m2
  Celková plocha 41,51 m2

2 610 000 Kč

zn. 1+KK 41,51m2 Y

 

Všechny byty (především ty ve 4. a 3.NP) mají pěkné výhledy, a to jak s orientací na JV, tak i na SZ.

Tento byt ve 4.NP je na JV.

Ze slunné pěkné lodžie je uklidňující výhled na střechy domů, radniční věž a vzdálené kopce.

Celková plocha (vč. lodžie) = 41,51m2  (+ sklepní kóje) .

 

Do obytného prostoru (23,93m2) vejde kuchyňský kout, jídelní stůl i místo na odpočinek.

Na lodžii se vstupuje moderním francouzkým oknem.

 

Výhody:

- velikost lodžie (5,12m2),

- v koupelně: sprcha, WC i prostor na pračku,

- komora v bytě,

- v ceně: podlahové krytiny, dveře, sanitární vybavení, sklepní kóje, parkovací stání. 

 

 

Bytové domy mají čtyři podlaží. Všechny typy bytů mají lodžii nebo balkon.

V 1.NP jsou ještě volné byty (1kk - SZ a 2kk - JV) s bezbariérovým přístupem. Dále je tady technické zázemí, sklepní koje.

  • Volný
  • Rezervovaný
  • Prodaný

Podlaží a orientace bytu

Typ 1+KK 41,51m2 Y
Podlaží Podlaží 2.
Podlaží 2.
Půdorys podlaží 2
Typ 1+KK 41,51m2 Y
Podlaží Podlaží 3.
Podlaží 3.
Půdorys podlaží 3
Typ 1+KK 41,51m2 Y
Podlaží Podlaží 4.
Podlaží 4.
Půdorys podlaží 4
Ilustrační foto