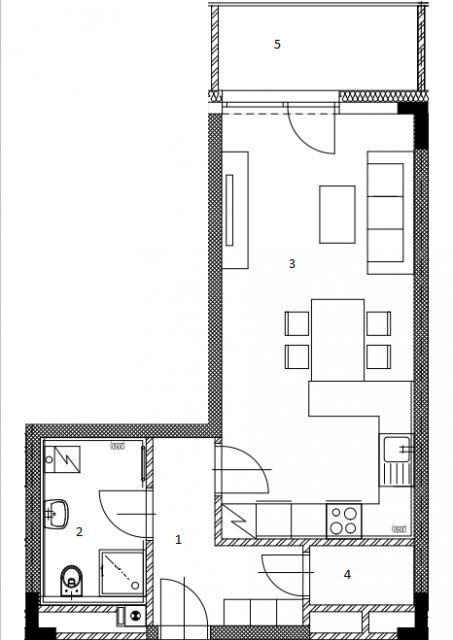
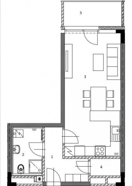
1+KK 41,87m2 X

1 PLUS KK
Typ | 1+KK 41,87m2 X | |
Podlaží | 3. NP |
01 | Chodba | 5,54 m2 |
02 | Koupelna vč. WC | 5,33 m2 |
03 | Obývací pokoj + kuchyňský kout | 23,93 m2 |
04 | Komora | 1,95 m2 |
Podlahová plocha | 36,75 m2 |
|
05 | Lodžie | 5,12 m2 |
Celková plocha | 41,87 m2 |
2 610 000 Kč
zn. 1+KK 41,87m2 X
Tento byt s dispozicí 1+kk a orientací na SZ, má celkovou plochu 41,87m2 vč. lodžie (5,12m2) + sklepní kóje a nachází se ve 3.NP.
Do obytného prostoru (23,93m2) s moderním francouzkým oknem vejde kuchyňský kout, jídelní stůl i místo na odpočinek.
Výhody:
- komora v bytě,
- velikost lodžie (5,12m2),
- v koupelně: sprcha, WC i prostor na pračku,
- v ceně: podlahové krytiny, dveře, sanitární vybavení koupelny, sklepní kóje, parkovací stání.
Bytové domy mají čtyři podlaží. Všechny typy bytů mají lodžii nebo balkon.
V 1.NP jsou ještě volné byty 1kk - SZ a 2kk - JV s bezbariérovým přístupem. Dále je tady umístěné technické zázemí domu, sklepní koje.