1+KK 42,46m2 X

1+KK 42,46m<sup>2</sup> X
1 PLUS KK
Typ 1+KK 42,46m2 X
Podlaží 1. NP, 2. NP, 3. NP, 4. NP
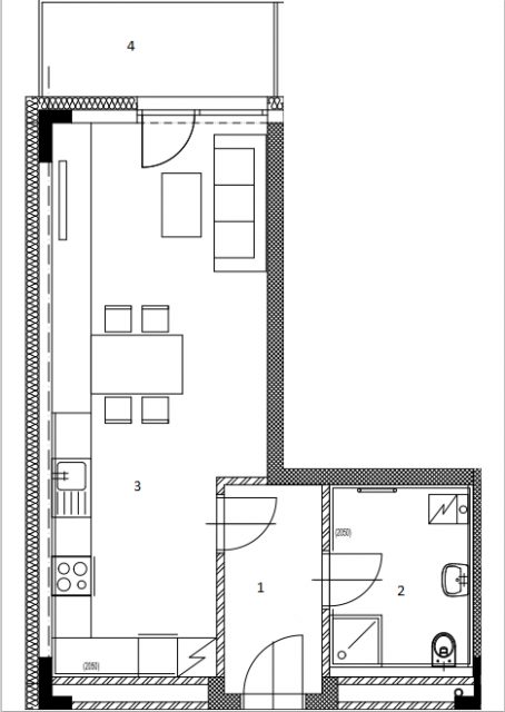
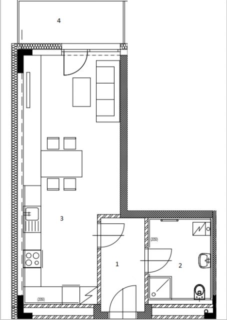
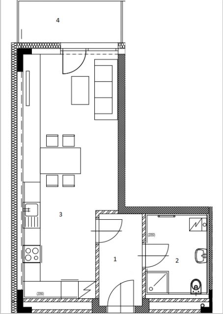
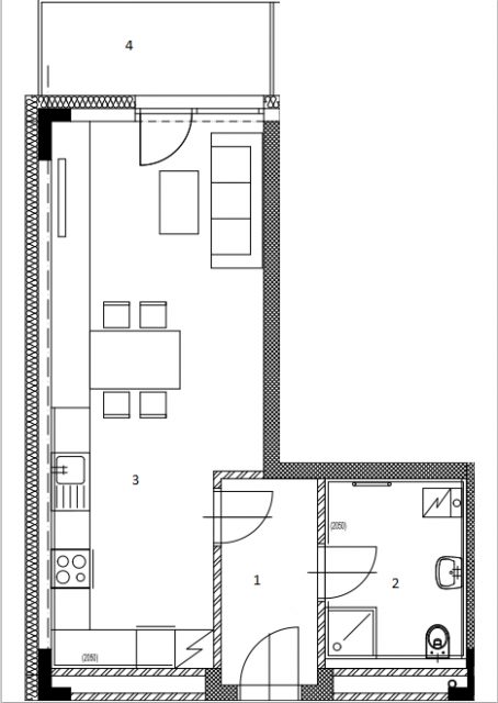
01 Vstupní chodba 4,82 m2
02 Koupelna s WC 6,49 m2
03 Obývací pokoj + kuchyňský kout 25,70 m2
  Podlahová plocha 37,01 m2
04 Lodžie 5,455 m2
  Celková plocha 42,46 m2

2 468 000 Kč

zn.  1+KK 42,46m2 X A1 

 

Tento byt v 1.NP s dispozicí 1+kk a orientací na SZ, má celkovou plochu 42,46m2 vč. lodžie (5,4m2) + sklepní kóje.

 

Do obytného prostoru (25,7m2) s moderním francouzkým oknem vejde kuchyňský kout, jídelní stůl a počítá se zde i s místem na odpočinek. 

 

Výhody:

- bezbariérový přístup,

- pěkná lodžie (5,41m2),

- v koupelně: sprcha, WC i prostor na pračku (6,49m2),

- v ceně: podlahové krytiny, dveře, sanitární vybavení koupelny, sklepní kóje, parkovací stání. 

 

 

Bytové domy mají čtyři podlaží. V 1.NP je ještě volný byt 1kk  s bezbariérovým přístupem.

K bytům jsou sklepní kóje a technické zázemí.

Všechny typy bytů mají velice prostornou a příjemnou lodžii nebo balkon.

 

 

  • Volný
  • Rezervovaný
  • Prodaný

Podlaží a orientace bytu

Typ 1+KK 42,46m2 X
Podlaží Podlaží 1.
Podlaží 1.
Půdorys podlaží 1
Typ 1+KK 42,46m2 X
Podlaží Podlaží 2.
Podlaží 2.
Půdorys podlaží 2
Typ 1+KK 42,46m2 X
Podlaží Podlaží 3.
Podlaží 3.
Půdorys podlaží 3
Typ 1+KK 42,46m2 X
Podlaží Podlaží 4.
Podlaží 4.
Půdorys podlaží 4
Ilustrační foto