2+KK 62,92m2 X

2+KK 62,92m<sup>2</sup> X
2 PLUS KK
Typ 2+KK 62,92m2 X
Podlaží 3. NP, 4. NP
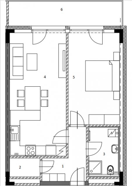
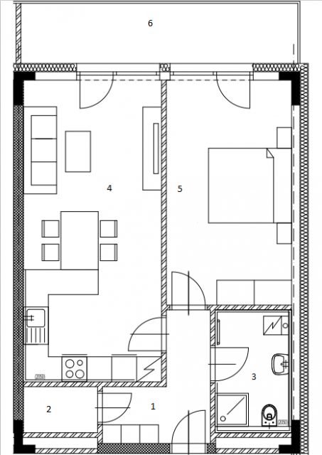
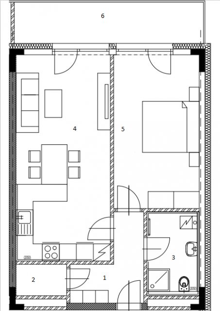
01 Chodba 5,46 m2
02 Komora 1,98 m2
03 Koupelna s WC 5,44 m2
04 Obytný prostor 23,86 m2
05 Ložnice 16,35 m2
  Podlahová plocha 53,09 m2
06 Lodžie 9,83 m2
  Celková plocha 62,92 m2

3 520 000 Kč

zn. 2+KK 62,92m2 X

 

Byty ve 4. a 3.NP mají pěkné výhledy, ať již si vyberete orientaci na JV nebo na SZ.

Tento nabízený byt ve 4.NP má výhled do okolí na vzdálené kopce.

Má dispozici: 2+kk, orientaci: SZ a plochu vč. velké lodžie: 62,92m2 (+ sklepní kóje).

 

Výhody:

- samostatné pokoje,

- prostorná příjemná lodžie (9,83 m2)  společná pro oba pokoje, je přístupná přes moderní francouzké okno,

- komora v bytě,

- z chodby vstupy: do pokojů, koupelny a komory,

- v koupelně: sprcha, WC, umývadlo i prostor na pračku,

- v ceně podlahové krytiny, dveře, sanitární vybavení, sklepní kóje, parkovací stání.

 

 

Bytové domy mají čtyři podlaží. Všechny typy bytů mají lodžii nebo balkon.

V 1.NP jsou ještě volné byty (1kk - SZ a 2kk - JV) s bezbariérovým přístupem , technické zázemí, sklepní koje.

 

  • Volný
  • Rezervovaný
  • Prodaný

Podlaží a orientace bytu

Typ 2+KK 62,92m2 X
Podlaží Podlaží 3.
Podlaží 3.
Půdorys podlaží 3
Typ 2+KK 62,92m2 X
Podlaží Podlaží 4.
Podlaží 4.
Půdorys podlaží 4
Ilustrační foto