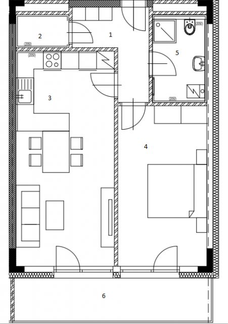
2+KK 63,55m2 Y

2 PLUS KK
Typ | 2+KK 63,55m2 Y | |
Podlaží | 2. NP, 3. NP, 4. NP |
01 | Chodba | 5,52 m2 |
02 | Komora | 1,98 m2 |
03 | Obytný prostor | 24,18 m2 |
04 | Ložnice | 16,35 m2 |
05 | Koupelna s WC | 5,44 m2 |
Podlahová plocha | 53,47 m2 |
|
06 | Lodžie | 10,08 m2 |
Celková plocha | 63,55 m2 |
3 465 000 Kč
zn. 2+KK 63,55m2 Y
Byt s dispozicí 2+kk se nachází v pohodlném 2.NP. Má prostornou lodžii (10,08m2) a orientaci na JV .
Plocha vč. lodžie je 63,55m2 .
(Tento byt nemá sklepní kóji).
Výhodou je:
- velkorysá slunná lodžie přístupná z obou pokojů,
- komora v bytě,
- v koupelně: sprcha, WC, umývadlo i prostor na pračku,
- v ceně podlahové krytiny, dveře, sanitární vybavení v koupelně, parkovací stání.
Bytové domy mají čtyři podlaží. V 1.NP jsou 4 bezbariérové byty a technické zázemí - sklepní koje, kotelna.
Všechny typy bytů mají lodžii nebo balkon.