3+KK 83,00m2 Y

3 PLUS KK
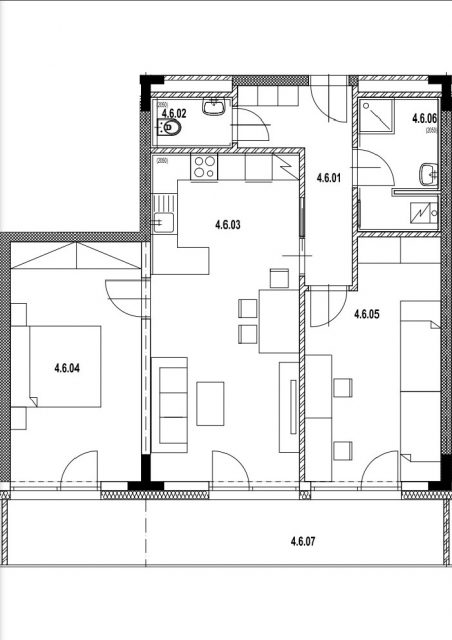
Typ | 3+KK 83,00m2 Y | |
Podlaží | 4. NP |
01 | Chodba | 6,37 m2 |
02 | WC | 2,00 m2 |
03 | Obývací pokoj + kuchyňský kout | 24,01 m2 |
04 | Ložnice | 15,37 m2 |
05 | Pokoj | 14,95 m2 |
06 | Koupelna | 5,45 m2 |
Podlahová plocha | 68,15 m2 |
|
07 | Lodžie | 14,49 m2 |
Celková plocha | 83,00 m2 |
3 955 000 Kč
zn. 3+KK 83,00m2 Y
Tento byt 3+kk je ve 4.NP. Má podlahovou plochu 68,15m2 a velkou slunnou lodžii o výměře 14,49m2.
V ceně je sklepní kóje (cca 4,68m2), podlahové krytiny, dveře, sanitární vybavení. Orientace JV.
Výhody:
- samostatné vstupy z chodby do pokoje, obytného prostoru s kuchyňským koutem a jídelnou, dále na WC a do koupelny,
- průchozí pouze obytný prostor s kuchyňským koutem,
- neprůchozí dva pokoje,
- v koupelně sprcha i vana,
- samostatné WC,
- velkorysá lodžie, která je přístupná pro všechny pokoje,
- vstupy na lodžii přes moderní francouzké okno.
Bytové domy mají čtyři podlaží. V 1.NP jsou 4 bezbariérové byty a technické zázemí - sklepní koje, kotelna.
Všechny typy bytů mají lodžii nebo balkon.