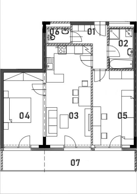
3+KK 83,06m2 Y

Typ | 3+KK 83,06m2 Y | |
Podlaží | 2. NP, 3. NP, 4. NP |
01 | Chodba | 5,46 m2 |
02 | Koupelna | 5,44 m2 |
03 | Obytný prostor | 24,00 m2 |
04 | Ložnice | 16,35 m2 |
05 | Pokoj | 15,32 m2 |
06 | WC | 2,00 m2 |
Podlahová plocha | 68,57 m2 |
|
07 | Lodžie | 14,49 m2 |
Celková plocha | 83,06 m2 |
4 065 000 Kč
zn. 3+KK 83,06m2 Y
Byty ve 4. a 3.NP mají pěkné výhledy, ať již si vyberete orientaci na JV nebo na SZ.
Tento byt 3+kk s orientací na JV je ve 4.NP. Z krásné slunné lodžie o výměře 14,49m2, je uklidňující výhled na střechy domů, radniční věž a vzdálené kopce.
Celková plocha = 68,57m2 (+ sklepní kóje 4,68m2).
Výhody:
- prostorná lodžie, která je přístupná ze všech pokojů přes francouzké okno,
- samostatné dva pokoje,
- průchozí pouze obytný prostor s kuchyňským koutem,
- v koupelně: sprcha, vana, prostor na pračku,
- z chodby jsou vstupy: do pokoje, obytného prostoru s kuchyňským koutem a jídelnou, dále do koupelny a na samostatné WC,
- v ceně 2x parkovací stání a sklepní koje.
Bytové domy mají čtyři podlaží. Všechny typy bytů mají lodžii nebo balkon.
V 1.NP jsou ještě volné byty (1kk - SZ a 2kk - JV) s bezbariérovým přístupem, dále je tady situované technické zázemí domu a sklepní koje.