3+KK 83,84m2 X

3+KK 83,84m<sup>2</sup> X
3 PLUS KK
Typ 3+KK 83,84m2 X
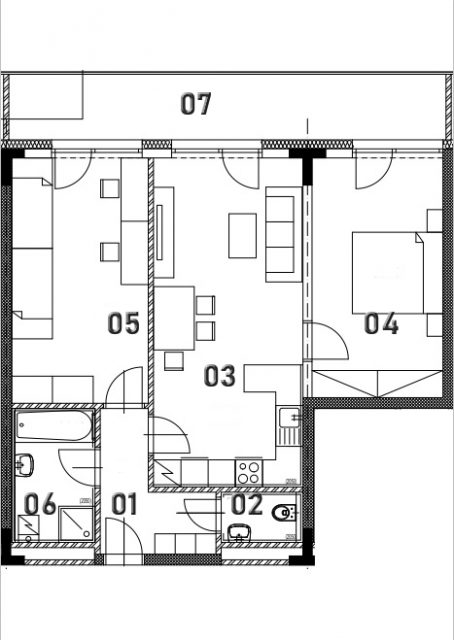
Podlaží 4. NP
01 Chodba 5,46 m2
02 WC 2,00 m2
03 Obývací pokoj + kuchyňský kout 24,00 m2
04 Ložnice 15,42 m2
05 Pokoj 16,60 m2
06 Koupelna 5,58 m2
  Podlahová plocha 69,06 m2
07 Lodžie 14,78 m2
  Celková plocha 83,84 m2

4 065 000 Kč

ozn.  3+KK 83,84m2 X A4

 

Tento byt 3+kk si můžete vybrat pouze ve 4.NP.

Má celkovou plochu 83,84m2, z toho 14,78m2 tvoří velká slunná lodžie. Z této je částečně výhled do korun stromů, které jsou v dostatečné vzdálenosti a tvoří příjemné zákoutí a částečně je také výhled na vzdálené kopce.

K bytu patří sklepní kóje, která se do plochy bytu nezapočítává.

 

 

Výhody:

- dva neprůchozí pokoje, 

- velkorysá a příjemná lodžie, která je přístupná ze všech místností přes moderní francouzká okna,

- v koupelně sprcha, vana i prostor na pračku,

- vstupy z chodby: do pokoje, obytného prostoru s kuchyňským koutem a jídelnou, dále na WC a do koupelny,

- v ceně: podlahové krytiny, dveře, sanitární vybavení, sklepní kóje, 2x parkovací stání.

 

 

Bytové domy mají čtyři podlaží. Všechny typy bytů mají velkou lodžii nebo balkon.

V 1.NP jsou ještě volné byty (1kk - SZ a 2kk - JV) s bezbariérovým přístupem, dále tady najdeme technické zázemí domu a sklepní koje.

 

 

  • Volný
  • Rezervovaný
  • Prodaný

Podlaží a orientace bytu

Typ 3+KK 83,84m2 X
Podlaží Podlaží 4.
Podlaží 4.
Půdorys podlaží 4
Ilustrační foto