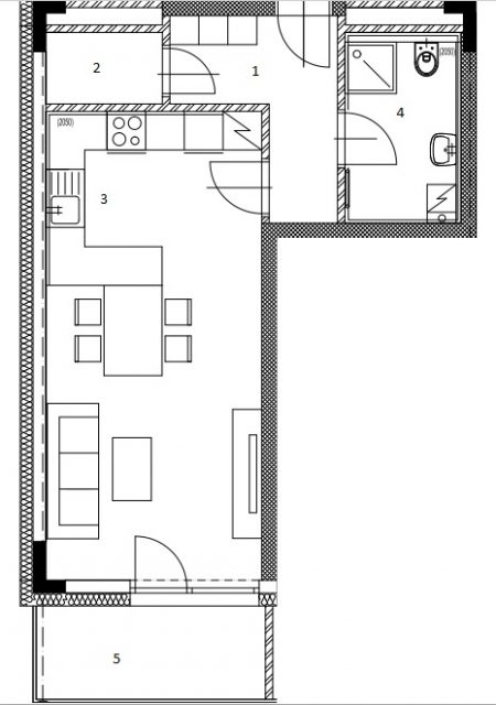
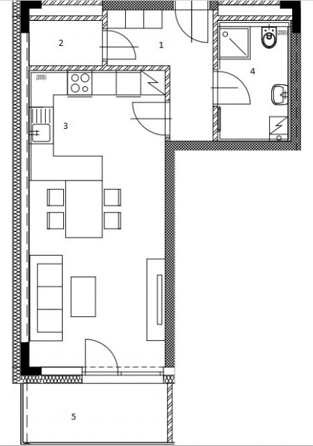
1+KK 42,59m2 Y

1 PLUS KK
Typ | 1+KK 42,59m2 Y | |
Podlaží | 3. NP, 4. NP |
01 | Chodba | 5,52 m2 |
02 | Komora | 2,00 m2 |
03 | Obytný prostor | 24,33 m2 |
04 | Koupelna s WC | 5,33 m2 |
Podlahová plocha | 37,18 m2 |
|
05 | Lodžie | 5,41 m2 |
Celková plocha | 42,59 m2 |
2 468 000 Kč
zn. 1+KK 42,59m2 Y
Byty ve 4. a 3.NP mají pěkné výhledy, ať již si vyberete orientaci na JV nebo na SZ.
Tento byt č. 4.9. ve 4.NP je na JV. Ze slunné lodžie je uklidňující výhled na střechy domů, radniční věž a vzdálené kopce.
Celková plocha (vč. lodžie) = 42,59m2 (+ sklepní kóje) .
Výhody:
- velikost lodžie (5,41m2),
- komora v bytě,
- v koupelně (5,33m2): sprcha, WC i prostor na pračku,
- v ceně: podlahové krytiny, dveře, sanitární vybavení, sklepní kóje, parkovací stání.
Bytové domy mají čtyři podlaží. Všechny typy bytů mají lodžii nebo balkon.
V 1.NP je ještě volný byt (1kk - SZ ) s bezbariérovým přístupem. Dále je zde situované technické zázemí domu a sklepní koje.