2+KK 62,92m2 Y

2+KK 62,92m<sup>2</sup> Y
2 PLUS KK
Typ 2+KK 62,92m2 Y
Podlaží 2. NP, 3. NP
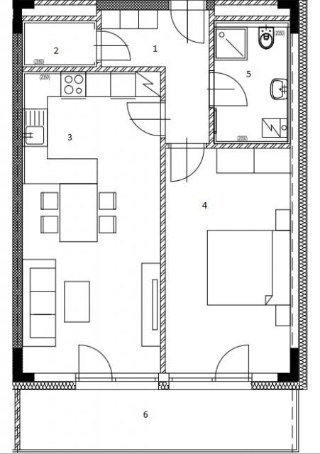
01 Chodba 5,46 m2
02 Komora 1,98 m2
03 Obytný prostor 23,86 m2
04 Ložnice 16,35 m2
05 Koupelna s WC 5,44 m2
  Podlahová plocha 53,09 m2
06 Lodžie 9,83 m2
  Celková plocha 62,92 m2

3 465 000 Kč

zn. 2+KK 62,92m2 Y

 

Tento byt s dispozicí 2+kk a orientací na JV má plochu vč. lodžie 62,92m2 + sklepní kóje. Můžete si ho vybrat ve 2.NP, 3.NP nebo ve 4.NP.

 

Výhody:

- samostatné vstupy do pokojů,

- prostorná a slunná lodžie (9,83m2) je přístupná z obou pokojů,

- vstup na lodžii přes moderní francouzské okno,

- v koupelně k dispozici vana i sprcha,

- samostatné WC.

V ceně: podlahov krytiny, dveře, sanitární vybavení, sklepní kóje.

 

Bytové domy mají čtyři podlaží. V 1.NP jsou 4 bezbariérové byty a technické zázemí - sklepní koje, kotelna.

Všechny typy bytů mají lodžii nebo balkon.

 

  • Volný
  • Rezervovaný
  • Prodaný

Podlaží a orientace bytu

Typ 2+KK 62,92m2 Y
Podlaží Podlaží 2.
Podlaží 2.
Půdorys podlaží 2
Typ 2+KK 62,92m2 Y
Podlaží Podlaží 3.
Podlaží 3.
Půdorys podlaží 3
Ilustrační foto