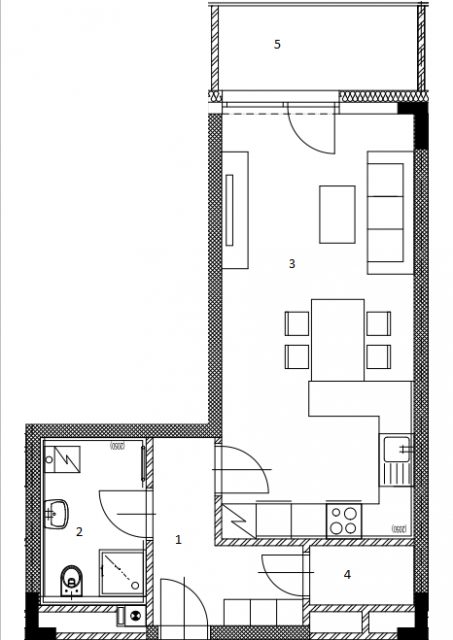
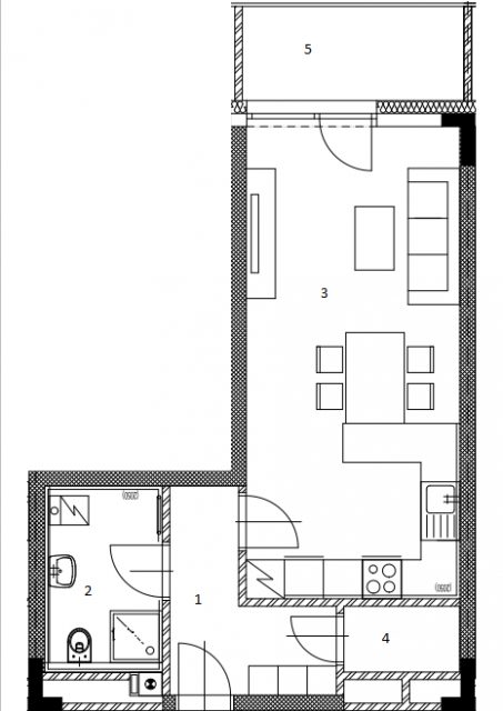
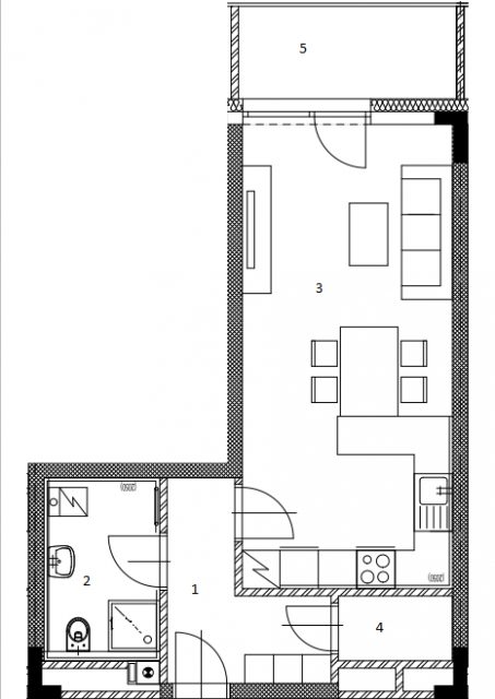
1+KK 42,59m2 X

1 PLUS KK
Typ | 1+KK 42,59m2 X | |
Podlaží | 2. NP, 3. NP |
01 | Chodba | 5,52 m2 |
02 | Koupelna s WC | 5,33 m2 |
03 | Obytný prostor | 24,33 m2 |
04 | Komora | 2,00 m2 |
Podlahová plocha | 37,18 m2 |
|
05 | Lodžie | 5,41 m2 |
Celková plocha | 42,59 m2 |
2 610 000 Kč
zn. 1+KK 42,59m2 X
Tento byt je ve 2.NP. Má dispozici 1+kk a orientaci na SZ. Celková plocha vč. lodžie = 42,59m2 + sklepní kóje.
Do obytného prostoru (24,33m2) s moderním francouzkým oknem vejde kuchyňský kout, jídelní stůl i místo na odpočinek.
Výhody:
- velikost lodžie (5,41m2),
- komora v bytě ,
- sprcha, umývadlo, WC i prostor na pračku v koupelně (5,33m2),
- v ceně: podlahové krytiny, dveře, sanitární vybavení koupelny, sklepní kóje, parkovací stání.
Parkování u domu s možností přikoupení parkovacího stání.
Bytové domy mají čtyři podlaží. V 1.NP jsou ještě volné byty (1kk a 2kk) s bezbariérovým přístupem.
Dále je tady situované technické zázemí a sklepní kóje.
Všechny typy bytů mají úžasně velkou lodžii nebo balkon.