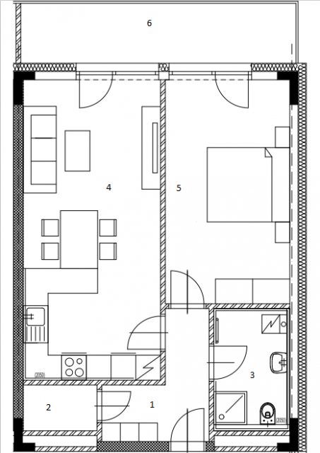
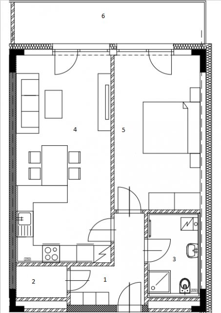
2+KK 63,55m2 X

2 PLUS KK
Typ | 2+KK 63,55m2 X | |
Podlaží | 3. NP, 4. NP |
01 | Chodba | 5,52 m2 |
02 | Komora | 1,98 m2 |
03 | Koupelna s WC | 5,44 m2 |
04 | Obytný prostor | 24,18 m2 |
05 | Ložnice | 16,35 m2 |
Podlahová plocha | 53,47 m2 |
|
06 | Lodžie | 10,08 m2 |
Celková plocha | 63,55 m2 |
3 520 000 Kč
zn. 2kk6355X_A4_0
Byty ve 4. a 3.NP mají pěkné výhledy, ať již si vyberete orientaci na JV nebo na SZ.
Tento nabízený byt ve 4.NP má výhled do okolí na vzdálené kopce.
Má dispozici: 2+kk, orientaci: SZ a plochu vč. lodžie: 63,55m2 (+ sklepní kóje).
Výhody:
- samostatné pokoje,
- prostorná lodžie (10,08 m2) společná pro oba pokoje s moderním francouzkým oknem,
- komora v bytě,
- z chodby vstupy: do pokojů, koupelny a komory,
- v koupelně: sprcha, WC, umývadlo i prostor na pračku,
- v ceně podlahové krytiny, dveře, sanitární vybavení, sklepní kóje, parkovací stání.
Bytové domy mají čtyři podlaží. Všechny typy bytů mají lodžii nebo balkon.
V 1.NP jsou bezbariérové byty (1kk - SZ a 2kk - JV), technické zázemí, sklepní koje.