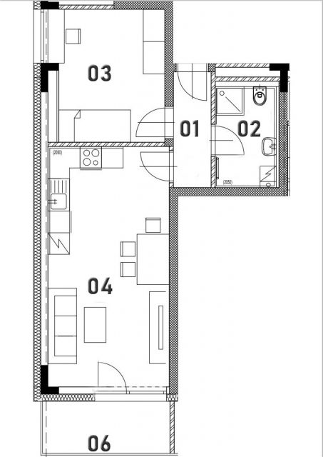
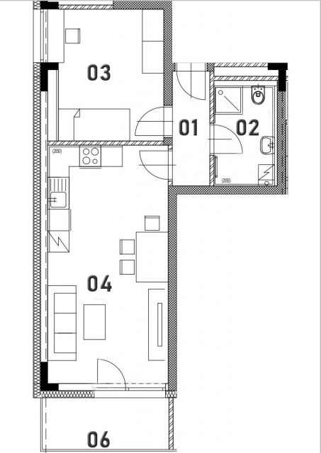
2+KK 48,61m2 Y

Typ | 2+KK 48,61m2 Y | |
Podlaží | 2. NP |
01 | Vstupní chodba | 3,381 m2 |
02 | Koupelna vč. WC | 5,25 m2 |
03 | Pokoj | 11,98 m2 |
04 | Obývací pokoj s kuchyňským koutem | 22,6 m2 |
Podlahová plocha | 43,221 m2 |
|
06 | Lodžie | 5,4 m2 |
Celková plocha | 48,61 m2 |
2 825 000 Kč
zn. 2+KK 48,61m2 Y A2
Tento útulný byt, se svým jedinečným uspořádáním, se nachází v příjemném 2.NP.
Má dispozici 2kk, kdy obývací pokoj s kuchyňským koutem a lodžií je orientovaný na JV, pokoj pak na JZ.
Plocha vč. lodžie = 48,62m2 (+ sklepní kóje). V ceně je parkovací stání k bytu.
Výhody:
- samostatné vstupy do pokojů,
- orientace na dvě světivé strany,
- prostorná slunná lodžie (5,40m2),
- vstup na lodžii přes moderní francouzské okno,
- v koupelně: sprcha, WC i prostor na pračku,
- v ceně: podlahové krytiny, dveře, sanitární vybavení, sklepní kóje, parkovací stání.
Bytové domy mají čtyři podlaží.
V 1.NP je ještě volný byt 1kk - SZ s bezbariérovým přístupem za cenu 2.468.000,-Kč.
Dále je k dispozici sklepní kóje a kolárna.
Všechny typy bytů mají opravdu velkorysou lodžii nebo balkon.