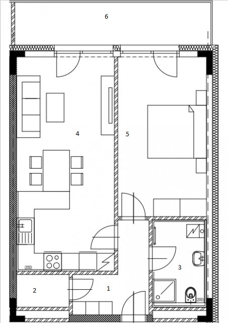
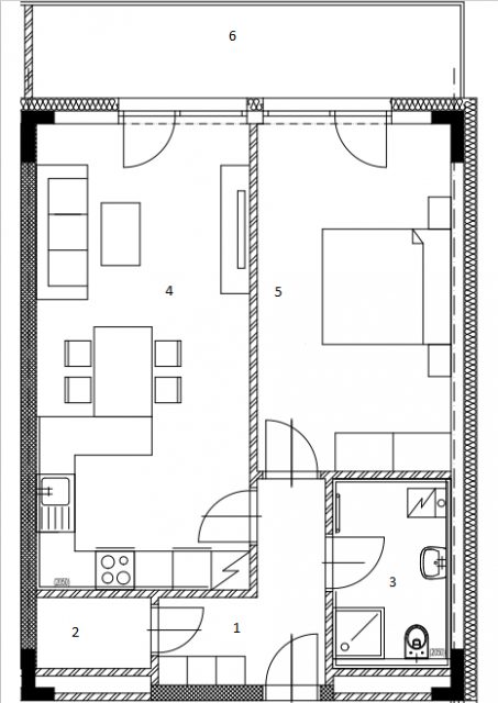
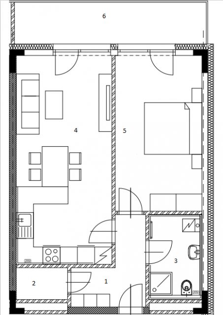
2+KK 63,53m2 X

2 PLUS KK
Typ | 2+KK 63,53m2 X | |
Podlaží | 2. NP |
01 | Vstupní chodba | 5,46 m2 |
02 | Komora | 2,02 m2 |
03 | Koupelna vč. WC | 5,3 m2 |
04 | Obývací pokoj + kuchyňský kout | 22,85 m2 |
05 | Pokoj | 17,83 m2 |
Podlahová plocha | 53,46 m2 |
|
06 | Lodžie | 10,07 m2 |
Celková plocha | 63,53 m2 |
3 465 000 Kč
zn. 2+KK 63,53m2 X_A2_0
Byt s dispozicí 2+kk a orientací na SZ, má velkorysou lodžií a nachází se v pohodlném 2.NP.
Plocha vč. lodžie = 63,53m2.
Výhody:
- neprůchozí pokoje,
- prostorná obytná místnost s kuchyňským koutem,
- komora v bytě,
- v koupelně: sprcha, WC, umývadlo i prostor na pračku,
- lodžie (10,07m2) přístupná z obou pokojů,
- v ceně: podlahové krytiny, dveře, sanitární vybavení koupelny, parkovací stání.
U tohoto bytu není sklepní kóje.
Bytové domy mají čtyři podlaží. Všechny typy bytů mají opravdu velkou a vzdušnou lodžii nebo balkon.
V 1.NP jsou ještě volné byty (1kk - SZ a 2kk - JV) s bezbariérovým přístupem. Dále je tady technické zázemí domu a sklepní koje.