2+KK 62,59m2 Y

2+KK 62,59m<sup>2</sup> Y
2 PLUS KK
Typ 2+KK 62,59m2 Y
Podlaží 2. NP, 3. NP
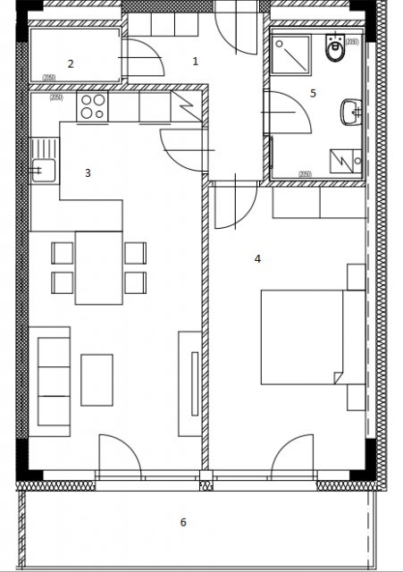
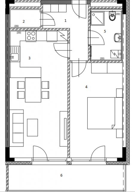
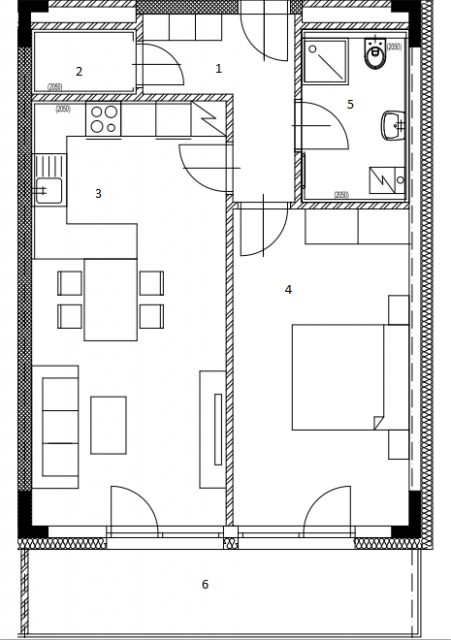
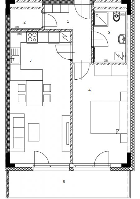
01 Chodba 5,46 m2
02 Komora 1,81 m2
03 Obytný prostor 23,86 m2
04 Ložnice 16,35 m2
05 Koupelna vč. WC 5,28 m2
  Podlahová plocha 52,76 m2
06 Lodžie 9,83 m2
  Celková plocha 62,59 m2

3 520 000 Kč

zn. 2+KK 62,59m2 Y

 

Tento byt s pěkným výhledem a dispozicí 2+kk má orientaci na JV. Plocha vč. lodžie = 62,59 m2 a je volný ve 3.NP.

K bytu patří sklepní kóje a parkovací stání.

 

Výhody:

- samostatné vstupy do pokojů,

- prostorná a slunná lodžie (9,83m2) přístupná z obou pokojů přes moderní francouzké okno,

- komora v bytě,

- v koupelně: sprcha, WC, umývadlo i prostor na pračku,

- v ceně: podlahové krytiny, dveře, sanitární vybavení, sklepní kóje /4,68m2/.

 

 

Bytové domy mají čtyři podlaží. Všechny typy bytů mají lodžii nebo balkon.

V 1.NP jsou ještě volné byty (1kk - SZ a 2kk - JV) s bezbariérovým přístupem, dále je tady situované technické zázemí domu a sklepní koje.

  • Volný
  • Rezervovaný
  • Prodaný

Podlaží a orientace bytu

Typ 2+KK 62,59m2 Y
Podlaží Podlaží 2.
Podlaží 2.
Půdorys podlaží 2
Typ 2+KK 62,59m2 Y
Podlaží Podlaží 3.
Podlaží 3.
Půdorys podlaží 3
Ilustrační foto