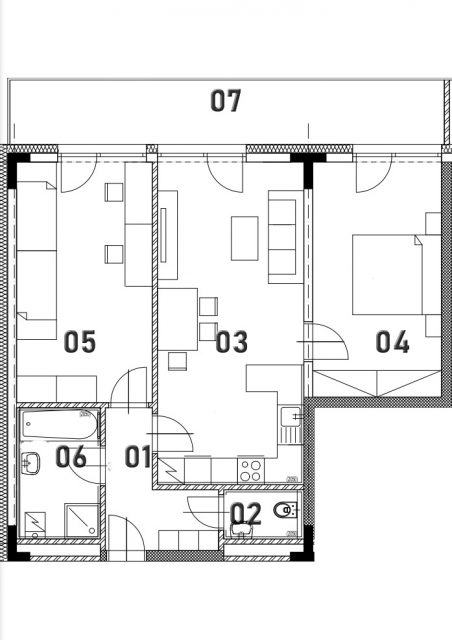
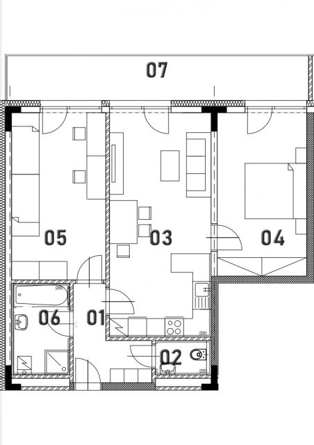
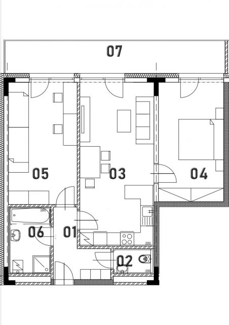
3+KK 83,79m2 X

Typ | 3+KK 83,79m2 X | |
Podlaží | 3. NP |
01 | Chodba | 5,46 m2 |
02 | WC | 2,00 m2 |
03 | Obývací pokoj + kuchyňský kout | 24,01 m2 |
04 | Ložnice | 16,60 m2 |
05 | Pokoj | 15,37 m2 |
06 | Koupelna | 5,58 m2 |
Podlahová plocha | 69,02 m2 |
|
07 | Lodžie | 14,77 m2 |
Celková plocha | 83,79 m2 |
4 065 000 Kč
zn. 3+KK 83,79m2 X
Byty ve 4. a 3.NP mají pěkné výhledy, ať již si vyberete orientaci na JV nebo na SZ.
Tento nabízený byt 3+kk ve 3.NP má pěkný výhled do okolí. Z velkorysé lodžie budete mít uklidňující pohled na vzdálené kopce, ale také na blízké koruny stromů, které jsou v dostatečné vzdálenosti a tvoří příjemné zákoutí.
Výměra bytu: podlahová ploch: 69,02m2 + lodžie s neskutečnou velikostí 14,77m2 + sklepní kóje 4,68m2.
Výhody:
- prostorná lodžie je přístupná ze všech pokojů přes moderní francouzká okna.
- samostatné dva pokoje,
- průchozí pouze obytný prostor s kuchyňským koutem,
- v koupelně: sprcha, vana i prostor na pračku,
- z chodby vstup: do pokoje, obytného prostoru s kuchyňským koutem a jídelnou, dále na WC a do koupelny,
- v ceně: podlahové krytiny, dveře, sanitární vybavení koupelen, sklepní kóje, 2x parkovací stání.
Bytové domy mají čtyři podlaží. Všechny typy bytů mají prostornou lodžii nebo balkon.
V 1.NP jsou ještě volné byty 1kk - SZ a 2kk - JV s bezbariérovým přístupem. Dále tady naleznete technické zázemí domu a sklepní koje.